Проект дома "1301"

ООО "Региональная
Строительная компания"
8 (902) 482-82-30
8 (902) 069-00-02

Характеристики проекта:

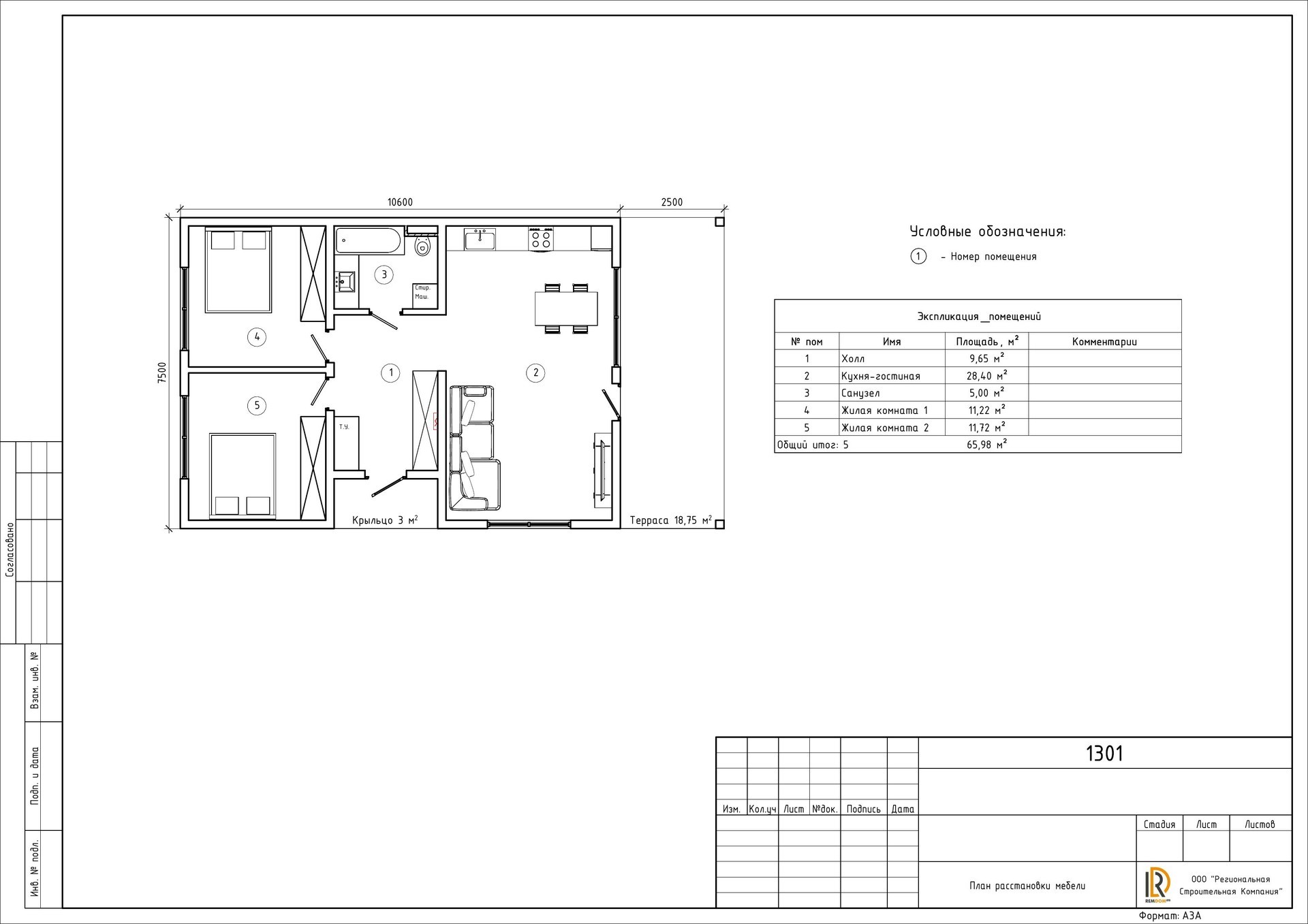
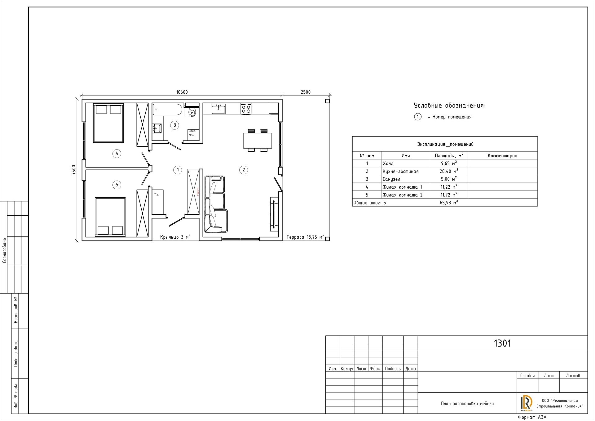
Жилая площадь кв.м.:
65.9
Этажей:
1
Спален:
2
Санузлов:
1
Гараж:
нет

Стоимость строительства:

Коробка дома + окна + фасад - каркасный дом
4 910 000 руб. 
(с крыльцом и террасой)

Описание проекта:

 Компактный дом для уютного загородного отдыха. Этот барнхаус сочетает в себе продуманную планировку и комфорт. Главное пространство — светлая кухня-гостиная 28 м² — плавно перетекает на просторную террасу через панорамное остекление. Терраса имеет крышу, а это значит, будь то солнце или дождь, находиться на ней будет приятно. Две уединенные спальни обеспечат отдых для семьи или гостей. Особое внимание уделено деталям: дом дополняет защищенное от осадков крыльцо, которое сделает перемещение комфортным в любую погоду.
В указаную стоимость проекта входит:
По вашему запросу просчитываем дома под чистовую отделку.
По вашему запросу просчитываем дома под чистовую отделку или в нужной готовности.
Для дома из блоков:
- Подготовка основания под плиту (устройство скального, щебёночного основания, гидроизоляция и утепление)
- Фундамент железобетонная плита 200-300 мм
- Вход коммуникаций
- Прифундаментный дренаж
- Коробка из блока 200-300 мм
- Окна белые (без ламинации)
- Межэтажное монолитное перекрытие (для 2 этажных домов)
- Чердачное перекрытие деревянное 200 мм
- Межкомнатные перегородки
- Крыша из гибкой черепицы
- Кладка вент.шахт, монтаж вент. проходок на крышу
- Все материалы для вышеуказанных работ и стоимость самих работ, а также накладные расходы
  Для дома из блоков:
  - Подготовка основания под плиту (устройство  скального, щебёночного основания, гидроизоляция и утепление)
  - Фундамент железобетонная плита 200-300 мм
  - Вход коммуникаций
  - Прифундаментный дренаж
  - Коробка из блока 200-300 мм
  - Окна белые (без ламинации)
  - Межэтажное монолитное перекрытие (для 2 этажных домов)
  - Чердачное перекрытие деревянное 200 мм
  - Межкомнатные перегородки
  - Крыша из гибкой черепицы
  - Кладка вент.шахт, монтаж вент. проходок на крышу
  - Все материалы для вышеуказанных работ и     стоимость самих работ, а также накладные     расходы
Для каркасного дома:
- Свайный фундамент
- Утепление пола 200 мм
- Несущие стены толщиной 200 мм
- Перегородки внутренние
- Межэтажное перекрытие деревянное (для 2 этажных домов)
- Чердачное перекрытие деревянное с утеплением 200 мм
- Каркас дома из сухой строганной доски
- Окна белые (без ламинации)
- Крыша на выбор (металлочерепица, гибкая черепица)
- Фасад пластиковый
- Вентиляционные проходки в крыше и наружных стенах
- Все материалы для вышеуказанных работ и стоимость самих работ, а также накладные расходы
  Для каркасного дома:
  - Свайный фундамент
  - Утепление пола 200 мм
  - Несущие стены толщиной 200 мм
  - Перегородки внутренние
  - Межэтажное перекрытие деревянное (для 2 этажных домов)
  - Чердачное перекрытие деревянное с утеплением 200 мм
  - Каркас дома из сухой строганной доски
  - Окна белые (без ламинации)
- Крыша на выбор (металлочерепица, гибкая  черепица)
  - Фасад пластиковый
  - Вентиляционные проходки в крыше и   наружных стенах
  - Все материалы для вышеуказанных работ и  стоимость самих работ, а также накладные  расходы
Стоимость террас расчитывается отдельно: 30 000 - 40 000 руб./м2. (в зависимости от конфигурации).
Доступно в двух исполнениях:
1. Бетонная плита, опоры деревянные, крыша;
2. Металлические сваи, деревянная обвязка, доска (лиственница), опоры деревянные, крыша.
*если в цене дома не указано, что терраса уже включена в стоимость
Телефон:
Эл. почта:
Адрес:
г. Владивосток, ул. Мусоргского, д. 72/2, 1 этаж, офис 6
(отдельный вход, слева от подъезда)
Соц. сети:
Информация:
ООО "Региональная
Строительная компания"
ИНН 2543121139
КПП 254301001
© 2023 г. Сайт не является публичной офертой и носит информационный характер. Все материалы данного сайта являются объектами авторского права (в том числе дизайн).
Запрещается копирование, распространение (в том числе путем копирования на другие сайты и ресурсы в Интернете) или любое иное использование информации и объектов без предварительного согласия правообладателя.
Телефон:
Телефон:
Эл. почта:
Адрес:
Адрес:
г. Владивосток, ул. Мусоргского, д. 72/2, 1 этаж, офис 6
(отдельный вход, слева от подъезда)
Соц. сети:
Соц. сети:
Информация:
ООО "Региональная
Строительная компания"
ИНН 2543121139
КПП 254301001
ООО "Региональная
Строительная компания"
ИНН 2543121139
КПП 254301001
© 2023 г. Сайт не является публичной офертой и носит информационный характер. Все материалы данного сайта являются объектами авторского права (в том числе дизайн).
Запрещается копирование, распространение (в том числе путем копирования на другие сайты и ресурсы в Интернете) или любое иное использование информации и объектов без предварительного согласия правообладателя.
© 2023 г. Сайт не является публичной офертой и носит информационный характер. Все материалы данного сайта являются объектами авторского права (в том числе дизайн).
Запрещается копирование, распространение (в том числе путем копирования на другие сайты и ресурсы в Интернете) или любое иное использование информации и объектов без предварительного согласия правообладателя.